Badplanung: Die Kunst des Zuhörens
Am Anfang steht immer der Wunsch, im Badezimmer etwas zu verändern. Dann wachsen erste Vorstellungen und vage Ideen, wie das Traumbad aussehen könnte. Doch alle Wünsche können nur dann realisiert werden, wenn es auch jemanden gibt, der sie hört – und der sie versteht. Deshalb sollte den Fachplaner eine Gabe auszeichnen, die häufig unterschätzt wird: die Kunst des Zuhörens. Darauf legen wir besonderen Wert.
Nach dem Beratungsgespräch konnte ich mich entspannt zurücklehnen. Ich wusste, dass die Badplaner meine Wünsche genau verstanden hatten.

Wünsche an erster Stelle. Ihre Wünsche für das neue Bad stehen in unserer Planung an erster Stelle. Nur so können unsere Badplaner Sie optimal beraten und Ideen entwickeln, die Ihre Erwartungen sogar noch übertreffen. In einer umfassenden Beratung entwickeln sie gemeinsam mit dem Kunden ein Gesamtkunst-
werk, an dem einfach alles stimmt: Raumaufteilung, Materialien, Farben, Formen und Licht.

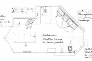
Offene Fragen klären. Sie haben bereits eine Vision von Ihrem neuen Bad? Sie wünschen sich eine bodenebene Dusche, eine Fußbodenheizung, jede Menge Stauraum und ein perfektes Beleuchtungskonzept? Die erste Frage, die wir gemeinsam klären, ist stets: Wer soll das neue Bad nutzen? Es spielt eine wichtige Rolle, ob Kinder im Haus sind oder das Bad von mehreren Generationen genutzt wird.

Ideen sind willkommen. Gerne können Kunden Bilder vom jetzigen Badezimmer oder Skizzen einer Idee zum ersten Besuch in die Badausstellung mitbringen. Sie können, müssen aber nicht. Im Dialog mit unseren Badplanern entwickeln sich die Ideen quasi wie von selbst. Dabei steht stets das Wesentliche im Mittelpunkt: Das sind die Menschen, die das Bad später benutzen werden.
Kosten- und Zeitrahmen
Im Verlauf der Beratung und bei der Begehung der Räume, die umgebaut werden sollen, machen wir uns ein immer genaueres Bild von Ihren Wünschen. Das dient uns als Basis für die erste Entwurfsplanung und die schriftliche Kosteneinschätzung. Nach der Auftragserteilung erstellen wir einen detaillierten Zeitplan, in den alle beteiligten Gewerke eingebunden sind. Von der Auftragserteilung durch den Kunden bis zur Übergabe kann man bei einer durchschnittlichen Renovierung mit sechs bis zehn Wochen rechnen. Zu einer sauberen Arbeit gehört selbstverständlich ein sorgfältiger Staubschutz inklusive Endreinigung.
Badrenovierung: In wenigen Schritten zum Wunschbad!
Erfahren Sie noch mehr über die Themen Badrenovierung, Kostentransparenz und Staubschutz.

Planung vom Profi
Unsere Badexperten erstellen Pläne, auf deren Grundlage das Bad ganzheitlich gestaltet werden kann. Am Ende steht ein Bad, das niemals von der Stange ist.

Schrittweise zum Bad
Von der ersten Idee zum Plan und vom Plan in die Umsetzung – Schritt für Schritt kommt man mit unseren Fachleuten zum Traumbad.

Badezimmer aus einer Hand
Wir planen, organisieren und koordinieren sämtliche Arbeiten aller Gewerke. Der Vorteil für Sie: Alles kommt aus einer Hand.

Badezimmer-Teilsanierung
Sie möchten Ihr Badezimmer verschönern, aber keine Komplettrenovierung? Kein Problem! Wir zeigen Ihnen, wie viel Sie schon mit einer Teilsanierung erreichen können.

Was ein Bad wirklich kostet
Jetzt erfahren, was sich hinter Begriffen wie Economy-Bad, Komfort-Bad oder Premium-Bad verbirgt und was das für Ihre Budgetplanung bedeutet.

Staubschutz
Damit sich Ihre Baustelle gar nicht wie eine Baustelle anfühlt, nutzen wir die neuesten Geräte und Schutzvorrichtungen für eine staubarme Badsanierung.

Pflegehinweise
Für ein blankes, hygienisches Badezimmer braucht es wenige Zutaten. Wir haben für Sie die wichtigsten Pflegetipps zusammengetragen.